Как заказать
Портфолио
Для дома
Для бизнеса
О нас
Дизайн
Мы всегда рады помочь Вам с созданием самого лучшего дизайна для Вашего дома или бизнеса!
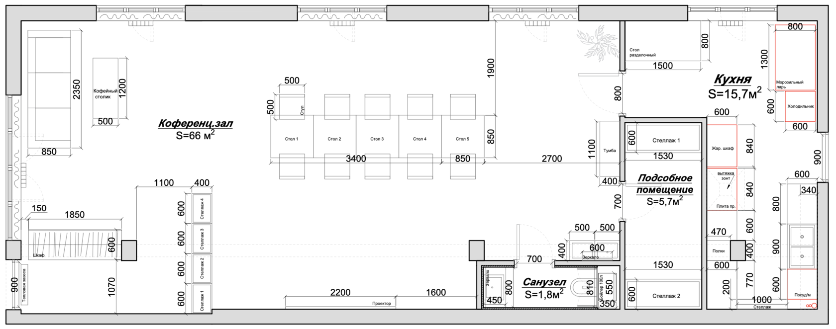
Кухня, занимающая 16 кв, выполнена в нейтральных оттенках, с фартуком из плитки "кабанчик". Главной целью было правильное расположение промышленной плиты и печи, а также морозильного ларя.

Уборная и подсобное помещение поддерживают общую стилистику помещения, также выполнены в оттенках бежевого и древесного.

Таким образом, творческое пространство представляет собой гармоничное сочетание функциональности и стиля, где каждая зона продумана до мелочей и создает комфортную атмосферу для работы и отдыха.
Творческое пространство на Партизанском пр-те.
Разработка дизайн-проекта общей площадью 96,6 кв.м.
Общая площадь помещения составляет 96,6кв, что позволило разделить его на 4 зоны: конференц-зал, полноценную кухню, уборную и подсобное помещение.

Конференц-зал выполнен в оттенках бежевого и шоколадного цвета, с акцентом на черной ферме и рейках на потолке. Мебель из древесных материалов с добавлением металла создает уютную атмосферу. Конференц-зал разделен на несколько зон: вход с вместительным шкафом для верхней одежды, зона ожидания с диваном и кофейным столиком, а также основная часть зала, огороженная металлическими стеллажами с озеленением.