Как заказать
Портфолио
Для дома
Для бизнеса
О нас
Дизайн
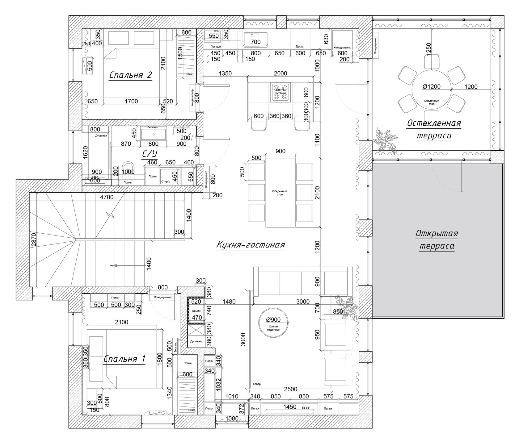
Коттедж в г.Артем
Разработка дизайн-проекта 2-х этажей общей площадью 117 кв.м.

Сроки изготовления мебели для данного объекта: 1,5 месяца
Мы всегда рады помочь Вам с созданием самого лучшего дизайна для Вашего дома или бизнеса!
Коттедж является гостевым домом для выходного дня, барбекю, рыбалки и охоты.

Цветовое решение было выбрано нейтральное, без ярких акцентов, с добавлением дерева, благородного синего цвета и деталями в виде черной матовой фурнитуры.
Кухня выполнена из пленочных и фрезерованных фасадов, столешница - мебельный щит с защитным покрытием. Фартук - затемненное стекло с розетками цвета “графит”.
Теплые, молочного оттенка стены, в сочетании со светло-серым керамогранитом, придают легкости в общей концепции проекта.
Высокий камин с дровницей стал “центром” в большой гостиной, отражающий мужской характер данного интерьера.

В гостевой спальне сделан легкий акцент на темно-изумрудный оттенок, выражающийся в окрашивании стены над изголовьем кровати и фасадах двух прикроватных тумбочек.

Хозяйская спальня выделяется необычным ассиметричным изголовьем, состоящим из пространства над головой с теплой подсветкой и одной подвесной тумбой.
Партизанский проспект, 44 к10
Ленинский район, Владивосток, 690106