Как заказать
Портфолио
Для дома
Для бизнеса
О нас
Дизайн
Квартира на Тухачевского
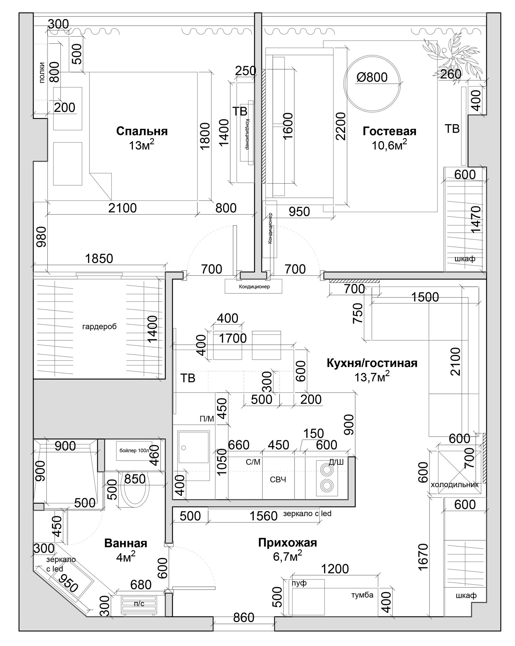
Разработка дизайн проекта квартиры под сдачу общей площадью 48 кв.м.

Сроки изготовления полного дизайн-проекта: 1 месяц.
Квартира для молодого парня, главной целью которого стала переделка имеющегося дизайн-проекта с учетом уже выполненных конструкций потолка, полного освещения и всей проведенной электрики.

Старый дизайн квартиры был переработан полностью в более современный, учитывая пожелания заказчика, с сохранением уже имеющихся особенностей интерьера от прошлых хозяев.
Из изменений в планировке, потребовалась замена гостиной комнаты на спальню.
Нестандартным помещением в этой квартире оказалась ванная комната, в которой тумбочка прилегающая сразу к трем стенам, не имеющим угла в 90 градусов, за которой был скрыт доступ к счетчикам. Задача решилась такой же более современной длинной тумбой со съемной плиткой под ней.
Мы всегда рады помочь Вам с созданием самого лучшего дизайна для Вашего дома или бизнеса!
Еще один маленький секрет в прихожей — это скрытый электрический щиток за картиной.
Партизанский проспект, 44 к10
Ленинский район, Владивосток, 690106