Как заказать
Портфолио
Для дома
Для бизнеса
О нас
Дизайн
Мы всегда рады помочь Вам с созданием самого лучшего дизайна для Вашего дома или бизнеса!
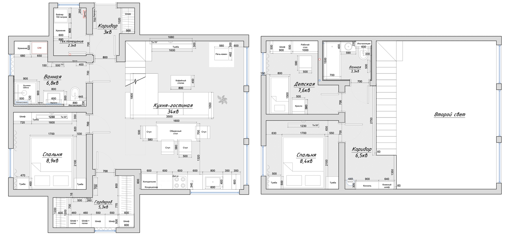
В спальне на втором этаже использовали нейтральные цвета, чтобы создать более спокойную атмосферу. Здесь нет ярких акцентов, как на первом этаже, но черные рейки и элементы освещения добавляют некоторую динамику в интерьер.

В целом, второй этаж дома - это место, где можно расслабиться и отдохнуть после активного дня. Здесь нет ярких цветов и акцентов, но все же присутствует своя уникальная атмосфера, созданная за счет использования натуральных материалов и нейтральных оттенков.

А-фрейм в п.Западный
Разработка дизайн-проекта 2-х этажей общей площадью 87,7кв.м.
Представляем вам дом "А-фрейм" в поселке Западный, Надеждинский район. Это двухэтажное здание площадью 87,7 кв. м, которое воплощает в себе яркие, но при этом природные акценты.

Спальня на первом этаже дома является ярким примером сочетания природных акцентов и нейтральных цветов. Главным акцентом в комнате стала стена, выполненная из вагонки и выкрашенная в терракотовый цвет. Нейтральные цвета стен и темная мебель создают целостность спальни.
В ванной комнате на первом этаже используется давно забытое решение в виде окрашенных стен. Общая картина складывается из нейтрально-серого керамогранита, терракотового цвета стен и мебели, выполненной из пленочных фасадов.
На втором этаже дома заказчик захотел создать более спокойный интерьер. Весь этаж выполнен вагонкой, обработанной маслом. Акцентом выступили черные рейки, сочетающиеся с элементами освещения.
Первый этаж дома - это сердце дома, где расположена кухня-гостиная. Здесь расположена кухня-гостиная, где мы использовали сложное сочетание материалов, которые перекликаются между собой за счет натуральных оттенков. Главным акцентом в гостиной стал яркий диван, на котором так и хочется провести уютные вечера.

Яркий акцент в виде терракотового цвета, который используется на первом этаже дома добавляет теплоты и уюта в интерьер, а также помогает создать единую концепцию дизайна всего дома.

В целом, гостиная на первом этаже дома - это место, где можно провести время с семьей или друзьями, наслаждаясь уютом и комфортом. Здесь все продумано до мелочей, чтобы создать максимально приятную атмосферу для отдыха и общения.